Vente maison à BAYONNE (64100)

Référence : L3VP-YM5-G04


679 000

BAYONNE

246 m²

8 pièces

Description du bien

Exclusivité

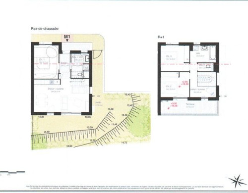
Maison + Appartement.Nichée au fond d'une impasse très calme, à 3 km du centre-ville de Bayonne, gros potentiel pour cette propriété de 246 M2 qui combine à la fois une grande maison familiale à l'étage et un appartement T3 totalement indépendant en rez de jardin. Idéal pour une grande famille ou une activité mixte habitation + location.A l'étage (118m2) : une grande entrée, une cuisine indépendante avec cellier, un spacieux double séjour avec cheminée et balcon donnant sur une véranda, 3 grandes chambres, salle d'eau et wc.En rez de jardin (128m2) :Un appartement T3 de 57m2 totalement indépendant avec entrée privative, cuisine, salle d'eau, wc séparé, 2 chambres et terrasse.Une immense pièce de vie de 58m2 qui jouxte l'appartement T3, idéale pour les grands repas de famille ou les regroupements entre amis.A l'extérieur autre terrasse donnant sur jardin piscinable. Garage indépendant Parcelle de 683m2Référence agence : 4153

Détails du bien

  • Mandat : exclusif
  • Code postal : 64100
  • Commune : BAYONNE
  • État général : Habitable
  • Surface habitable : 246 m2
  • Nombre de pièces : 8
  • Nombre de chambres : 5
  • Nombre de salle de bain : 1
  • Nombre de parking : 1
  • Cuisine : simple
  • Meublé : non

Ce bien est proposé par

ORPI - AGENCE DU CENTRE

Nous contacter

Diagnostic de performances énergétiques

Diagnostic de performance énergétique

363 KWhEP/m2/an

Gaz à Effet de Serre

11 Kgéq/CO2/an

Montant estimé des dépenses annuelles d'énergie pour un usage standard : non communiqué.
Date de référence des prix de l'énergie utilisés pour établir cette estimation : non communiqué.

CES BIENS PEUVENT VOUS INTÉRESSER