Vente immeuble à PAU (64000)

Référence : 4505


585 360

PAU

686 m²

Immeuble

Description du bien

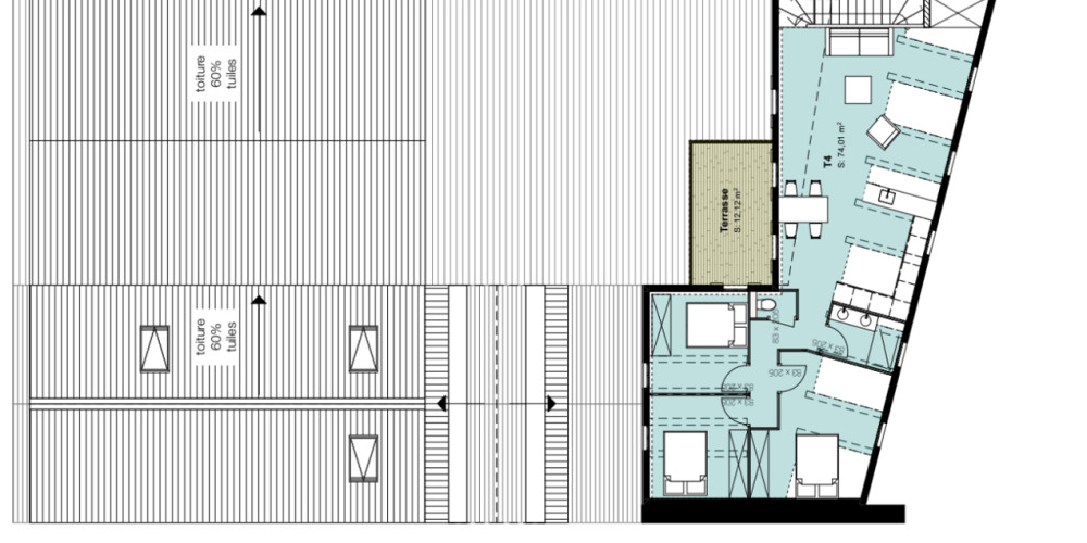
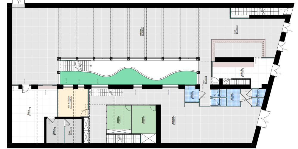
Situé à proximité immédiate de l'hyper-centre, dans un secteur dynamique et en pleine transformation, cet immeuble d'environ 686 m² offre une opportunité rare d'investissement.Actuellement construit en R+2, il comprend une surface commerciale au rez-de-chaussée et offre la possibilité de surélévation, permettant d'augmenter encore son potentiel. Un permis de construire a été déposé et accepté en 2022, prévoyant un projet mixte associant habitation et commerce, vous offrant une base solide pour concrétiser vos ambitions.Profitez d'un emplacement stratégique, à deux pas des commodités et des principaux axes de circulation, dans un quartier prometteur offrant de belles perspectives de valorisation.Le dossier complet comprenant le permis de construire et les détails du projet est disponible sur demande.Contactez-nous dès aujourd'hui pour plus d'informations ou pour organiser une visite. Une opportunité à ne pas manquer !

Détails du bien

  • Mandat : simple
  • Code postal : 64000
  • Commune : PAU
  • Accès handicapés :
  • Surface totale : 686 m2
  • Eau chaude : Alimentation en eau chaude non communiquee

Ce bien est proposé par

AD HOC CONSEIL

Nous contacter

CES BIENS PEUVENT VOUS INTÉRESSER