Vente maison à BAYONNE (64100)

Référence : 487


349 800

BAYONNE

86 m²

4 pièces

Description du bien

Exclusivité

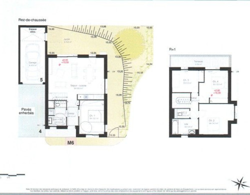
Située à Bayonne Nord, cette maison de plus de 85,57 m2 habitables accueillera votre petite famille avec son séjour ouvert sur le jardin et la terrasse, sa cuisine aménagée et équipée, au rez-de-chaussée, et ses 3 chambres et ses 2 salles d'eau à l'étage. Ses ouvertures double-vitrage lui procurent une luminosité très appréciable. Construit en 1972, le bien a été régulièrement entretenu, avec notamment la réfection de la toiture et le changement de toutes les menuiseries extérieures et de leurs volets. Il reprendra de sa jeunesse après quelques travaux d'électricité et d'embellissements et pourra bénéficier d'un meilleur confort de vie en modifiant simplement l'agencement du rez-de-chaussée, pour en faire un seul espace de plus de 42m2. Elle bénéficie d'un garage de 17,50 m2 accessible par la rue et communiquant à l'habitation par un porche, ainsi que d'une cour au Sud-Est. Le jardin de 181m2, plat et clôturé, profite d'un bel ensoleillement et d'un potentiel d'aménagement. Il profite de la proximité des commerces, des établissements scolaires, de l'échangeur des A63 et A64 ainsi que des transports en commun, dont le TRAMBUS. Idéal pour les amateurs de vélo avec des pistes cyclables tout autour, pour rejoindre les plages d'Anglet, le centre-ville de Bayonne mais aussi les bords de l'Adour.

Détails du bien

  • Mandat : exclusif
  • Code postal : 64100
  • Commune : BAYONNE
  • Surface habitable : 86 m2
  • Nombre de pièces : 4
  • Nombre de chambres : 3
  • Nombre de parking : 2
  • Cuisine : équipée
  • Meublé : non

Ce bien est proposé par

CB IMMOBILIER

CB IMMOBILIER

841 avenue de Bayonne
64210 BIDART

06 61 13 64 41
b.trinca@cbimmobilier64.fr

Nous contacter

Diagnostic de performances énergétiques

Diagnostic de performance énergétique

203 KWhEP/m2/an

Gaz à Effet de Serre

43 Kgéq/CO2/an

Montant estimé des dépenses annuelles d'énergie pour un usage standard : non communiqué.
Date de référence des prix de l'énergie utilisés pour établir cette estimation : non communiqué.

CES BIENS PEUVENT VOUS INTÉRESSER